Året Runt Villavagn i naturskön miljö Grottbyns ca Nyhet!
Information
Året Runt Villavagn i naturskön miljö
Vi har nu fått i uppdrag att förmedla denna fina Svenskbyggda villavagn på hela 50kvm placerad i en underbar naturskön miljö långt ifrån storstads stressen på Grottbyns Camping.
Denna välisolerade året runt modell med vattenburen golvvärme och 3-glas fönster står på en plats tillgänglig hela året med vatten, avlopp o 16 A 3-fas el.
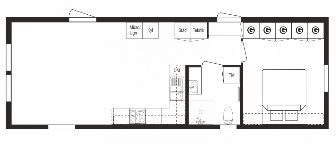
Planlösningen erbjuder ett stort rymligt sovrum fullt med förvaring och plats för 180x200cm sängar, ett rejält badrum med dusch, toa och handfat samt tvättmaskin med torktumlare.
Här finns också ett väldigt rejält kök i öppen planlösning med vardagsrummet som skapar härliga ytor för umgänge.
Vagnen kommer säljas omöblerad.
Utanför finns en stor altan samt ett vintertält som ingår i affären.
Det finns en visst behov av skyndsam affär så priset och tillträde kan diskuteras
Säsongsavtal tecknas direkt mellan köpare och campingen, kostnad ca 3000kr/mån som faktureras halvårsvis
För mer information och visning boka tid med Morgan Nyman 0705735073
Morgan Nyman AB
Häggum Ranstadsverket
521 64 Stenstorp
Fakta
| Antal bäddar | 2 |
|---|---|
| Antal sovrum | 1 |
| Fönsternummer | VH50 grottbyn |
| Gasol/El | El |
| Storlek | 12 x 4,2 |
| Säsong | Året runt |



